Forgotten?

The Editors Desk

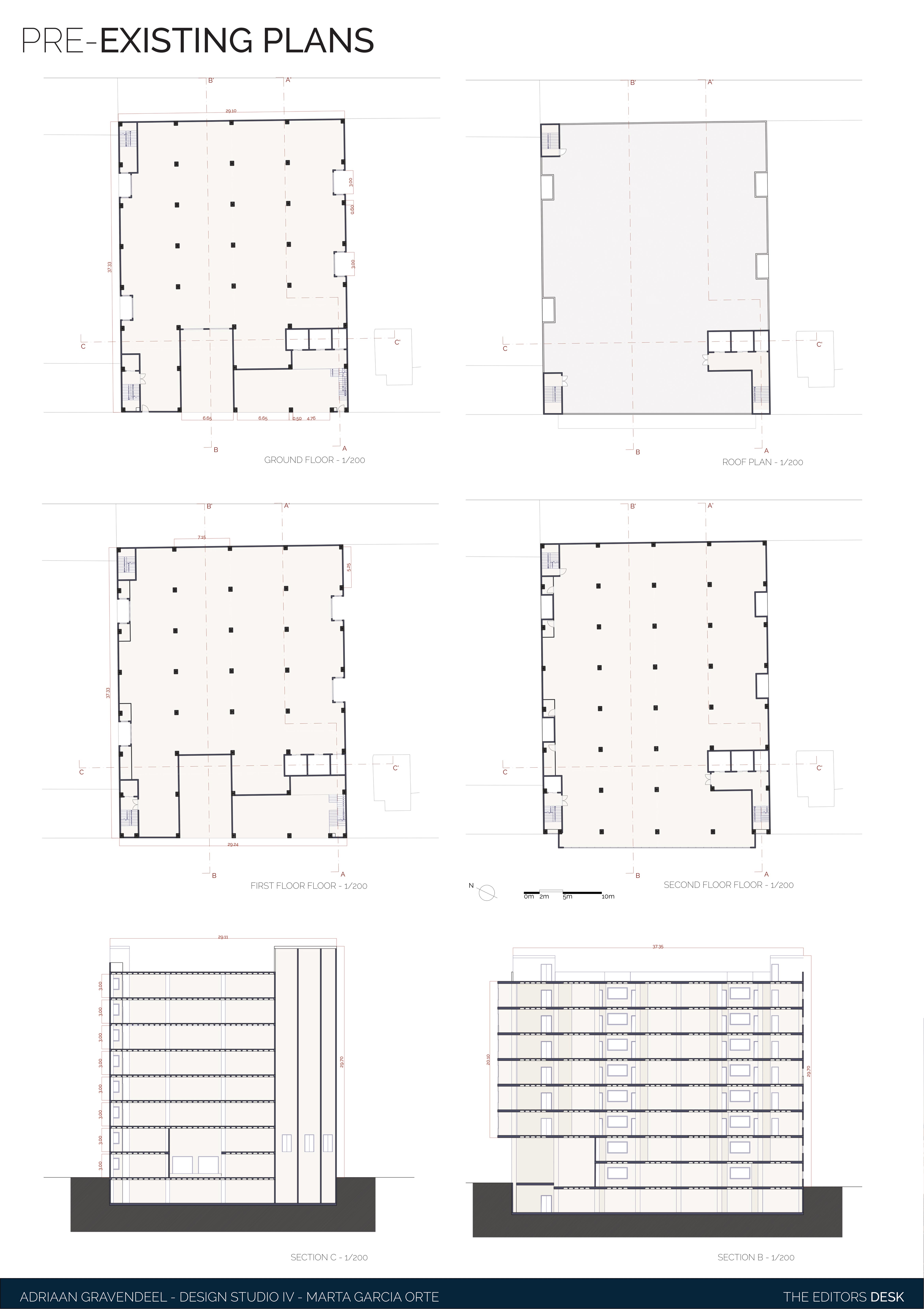
The assignment to redesign a building to a new purpose, the adaptive reuse, is always an interesting challenge. The existing structure, often contains structural elements that constrict the redesign. When successfully executed the old and new find a beautiful coexistence and give new life to the old. In this case the former office building is built around pillars connected by horizontal connecting beams, which cannot be removed. The design presented here combines residential with commercial purpose. The lower floors are to be used as head-office for a journalism firm, with a dynamic atmosphere. This is created by extending the workspace over the different floorlevels. Furthermore open spaces are created in between, which also cross the “natural” floor borders. The top the building contains the residential part of the building. It is a mix of sizes allowing for several social classes to coexist. The façade is a 3-dimensional design, to emphasize the dynamic of the redesign. It symbolizes the ever active and inquiring nature of the journalism inside.

Location

L'Hospitalet

Area

7000 sqm

Year

2021